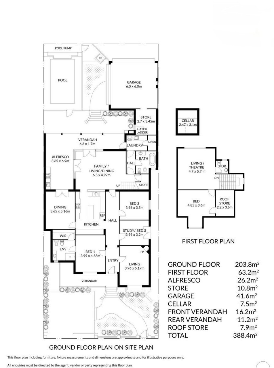
This is a rare offering: a beautiful character home, lovingly and thoughtfully extended in sympathy with the original design, bringing the best of both eras together to create a charming 4-5 bedroom residence with a landscaped backyard, pool and laneway access to secure parking.
The location offers incredible convenience to so many of North Perth’s attractions, in one of its most sought-after streets. Set on a generous 577sqm block on the high side of the street, the residence delivers a refined family lifestyle with exceptional space, sophistication and enduring charm.
High ceilings, generous rooms, rich hardwood floors and abundant natural light enhance the sense of grandeur throughout. Some rooms retain original fireplaces and featured leadlight windows, adding warmth, character and timeless appeal.
Two exquisitely appointed bathrooms, plus an additional powder room, combine classic styling with contemporary comfort.
The home offers multiple living spaces, adaptable depending on your family’s wants and needs. Part of the extension includes an upstairs lounge, currently set up as a generous home theatre, but easily adaptable to a multitude of uses, including a games room, gym, guest bedroom suite or home office.
The renovations included the creation of a large central family kitchen, offering granite stone benchtops and premium timber cabinetry. It seamlessly connects to the open-plan living and dining area, as well as a more formal dining room for those special occasions.
The home opens out to the covered alfresco dining and BBQ area, as well as the family-friendly backyard with its carefully considered landscaping, lawns, paved zones and pool. It is ideal for year-round living and entertaining.
The double garage off the ROW, with storeroom, boasts an impressive downstairs cellar, ideal for your special wine collection. Parking is further enhanced by two additional secure spaces behind the electronic front gates.
Set within the vibrant heart of North Perth, this exceptional property places you moments from local parks, esteemed schools, boutique shopping, cafés and excellent public transport. It is a residence that delivers not just a home, but an enviable lifestyle.
We invite you to experience this in person at one of our scheduled home opens or by private inspection. Contact us today for full details.
Features
• Beautifully extended character home blending original charm with modern living
• Flexible 4-5 bedroom layout
• 2 bathrooms plus additional powder room
• High ceilings, hardwood floors, leadlight windows and original fireplaces
• Multiple living areas including upstairs lounge/home theatre
• Large open-plan family living and dining plus formal dining room
• Central kitchen with granite benchtops and premium timber cabinetry
• Covered alfresco dining and BBQ area
• Landscaped backyard with lawn, paved zones and swimming pool
• Ideal for year-round family living and entertaining
• Double garage off ROW with secure access
• Additional secure parking behind electronic front gates
• Storeroom plus impressive basement cellar
• 6.5KW Solar Panels = 24 Panels
• Generous 577sqm block on the high side of the street
• Positioned in one of North Perth’s most sought-after streets
• Close to parks, schools, cafés, shopping and public transport
PROPERTY PARTICULARS:
• Council Rates: $3,138.70 pa
• Water Rates: $1,817.17 pa

